Edificio de viviendas en Venta
Madrid, 28045
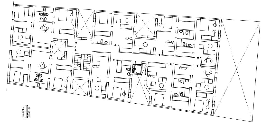
Edificio de viviendas en venta, parcialmente alquilado y para reformar, ubicado en zona estratégica para rentabilizar, junto a la estación de Atocha Renfe. Tiene una superficie de 2.700 m2 y cuenta con 46 viviendas, con superficies que oscilan entre los 40 m2 y los 77 m2.
Id inmueble: 18792
Precio: 6.950.000 €
Edificabilidad: 2700
Ref. Interna: 60013
ático
almacén
cocina/office












